Greg Saunders
Join Sign In

1165 Mount Pleasant Rd , Kingston Springs, TN 37082

$350,000
  • 1165 Mount Pleasant Rd , Kingston Springs, TN 37082 Main Photo

7 Total Photos [Click to View All]

New to the Market Active
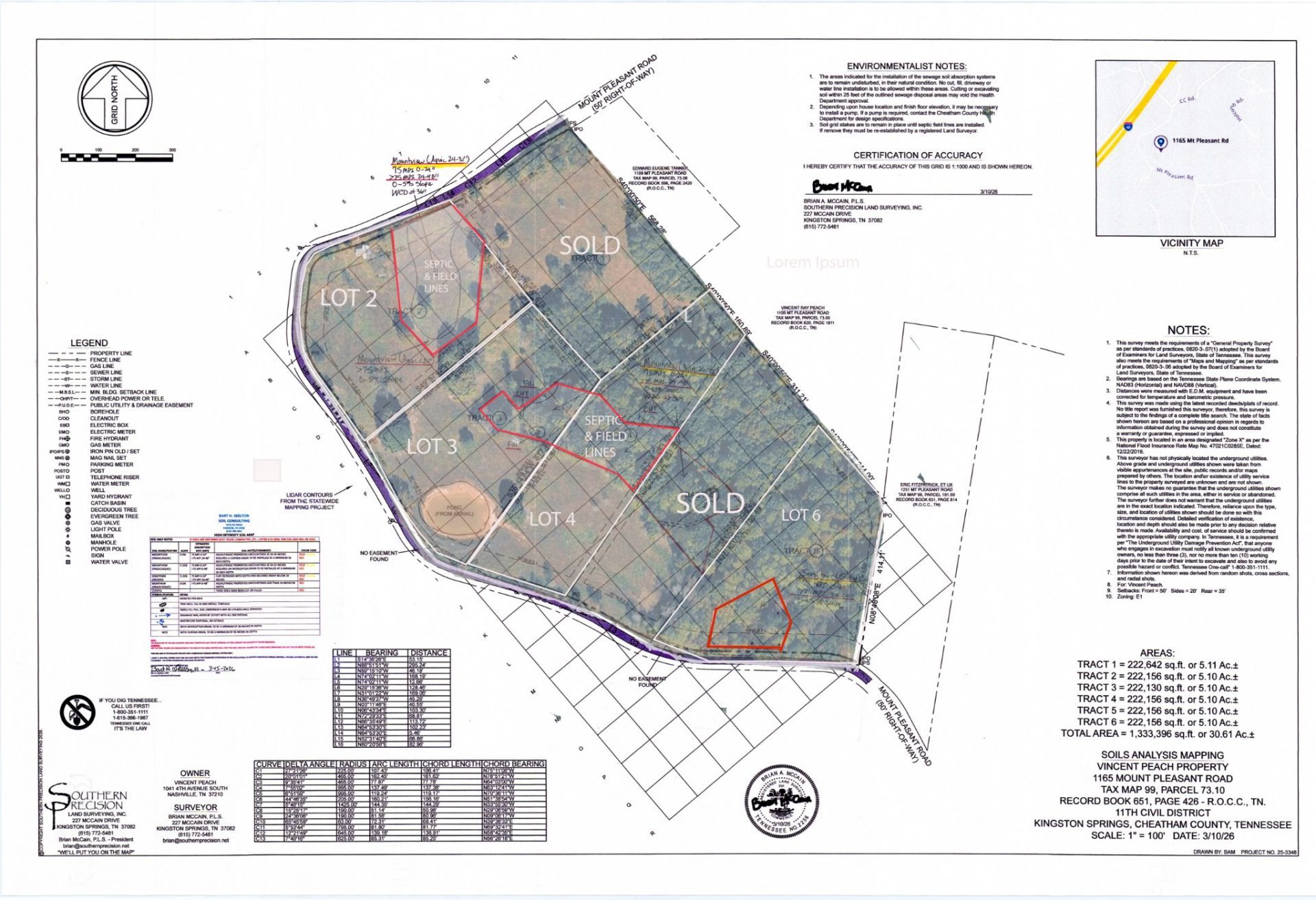
LOT SIZE 5.100 acres MLS#3184306
STATUSActive PROPERTY TYPELand - Residential SUBDIVISIONLa Pearla Ranch

Property Description

Set among the rolling hills of Kingston Springs, Lot 3, is 5.10 acres offers a rare combination of natural beauty, privacy, and accessibility. The surrounding landscape is peaceful and scenic, creating a quiet setting that feels removed while still remaining highly convenient. Gently rolling topography and two existing ponds add character and visual interest to the land, offering both a picturesque backdrop and flexibility for a buyer to tailor the property to their vision. The setting is ideal for a custom home that takes full advantage of the natural surroundings.Positioned within a corridor of high-value properties, the homesite backs directly to La Pearla Ranch, a $3.75M private estate, and sits across from another multi-million dollar estate, reinforcing both the quality of the location and long-term investment potential.Despite its serene setting, the property provides easy access to the interstate, making commuting simple. Bellevue is just 12 minutes away, downtown Nashville is approximately 25-30 minutes, and the Golf Club of Tennessee is only a few minute drive, offering access to one of the region's most exclusive golf destinations. Soil studies are complete, an indicate that a 4+ bedroom septic would be approved.Demand in the area is already evident, with Lots 1 and 5 sold. Additional homesites are available, including Lots 2, 4, and 6. There is also a rare opportunity to combine Lots 2, 3, and 4 for a total of approximately 15 acres, or an option to combine two 5 acre parcels, creating a truly exceptional estate setting.

1165 Mount Pleasant Rd | MLS# 3184306

This land located at 1165 Mount Pleasant Rd , Kingston Springs, TN 37082 is currently listed for sale with an asking price of $350,000. The property has approximately 5.10 Acres. Search Kingston Springs real estate on gregsaunders.crye-leike.com today.

Property Features

Property Type: Land - Residential
Lot Size: 5.10 Acres
Taxes: $2,002

Feature Descriptions

Lot: Rolling Slope
Parcel#: 099 07310 000
Sewer: Private Sewer
Topography: Rolling Slope
Water: Cistern
Water Features: More than 1 Pond, Pond

Local Schools

High School: Harpeth High School
Middle School: Harpeth Middle School
Elementary School: Kingston Springs Elementary

Listed By / Shown By

Listed By

Agency Name: Compass
Agency Phone: 6153836600

Shown By

Agent Name: Greg Saunders
Agent Phone: (615) 815-9076
Agency Title: Crye-Leike Real Estate Services

IDX logo

Source: Nashville MLS

Estimate Your Payment

Estimated Payment

$ 1,047.86 per month $778.95 Principal & Interest $166.83 Property Tax $102.08 Homeowner's Insurance

Change Payment Information

%
years/fixed
yearly
yearly (est.)
(Payments are an estimate and may vary by lender)

Login to My Homefinder

Pixel